СТУДИЯ С ТЕРРАСОЙ В КОМПЛЕКСЕ Aquavista Park — ВАРНА

В продаже студия, расположенная на первом этаже жилого комплекса Aquavista Park в городе Варна. Апартамент находится во входе D и имеет восточную ориентацию, благодаря чему помещение получает мягкий утренний свет и остаётся комфортным в течение дня.

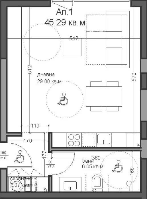
Общая площадь квартиры составляет 53 м². Планировка включает просторный холл площадью 30 м², санузел 6 м², отдельное сервисное помещение 1 м², а также террасу, которая является полноценным продолжением жилого пространства и может использоваться как зона отдыха.

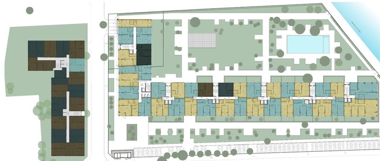
Комплекс Aquavista Park представляет собой закрытую жилую среду с бассейном и ухоженной территорией. Формат комплекса подходит как для постоянного проживания, так и для сезонного или долгосрочного использования.

Цена апартамента — 68 000 €.

Объект аккуратный, понятный по планировке и расположению, без перегруженных решений — практичный вариант для Варны, который одинаково хорошо подходит для жизни и аренды.

Мы помогаем не только купить, но и зарабатывать на недвижимости.
088 458 1258







Source

Добавить комментарий

Ваш адрес email не будет опубликован. Обязательные поля помечены *